T304 BORGOLAVEZZARO - CASA INDIPEND. CON CORTILE PRIV.

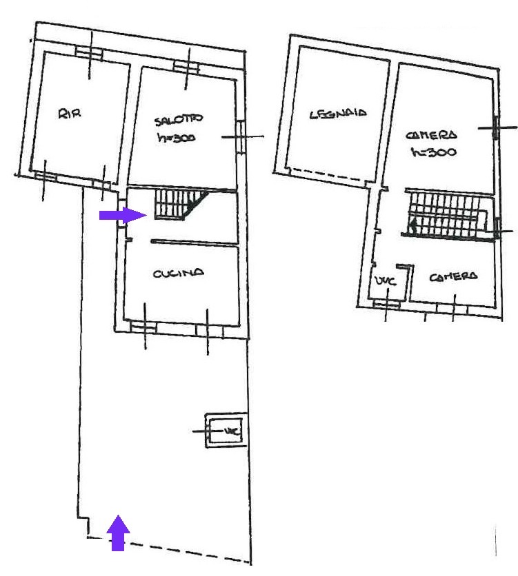
T304 ZONA BORGOLAVEZZARO - Via Parvopassù, 1 - Vendesi in centro paese CASETTA SEMI-INDIPENDENTE CON CORTILE PRIVATO disposta su 2 livelli di mq 90 totali e più precisamente: PT: ingresso, vano scala, cucina, sala; 1P: 2 camere, bagno, balcone; Completa il tutto un locale in cortile attaccato all'abitazione attualmente non comunicante con la casa e un bagno in cortile. LIBERA SUBITO, DA SISTEMARE, TERMOAUTONOMO, DOPPI VETRI NUOVI. € 45.000 Cl. Energ. G IPE 380,63 kWh/mq. CENTROCASA NOVARA 0321/404133 novara1@centrocasaimmobiliare.it Le visite agli immobili verranno effettuate previa sottoscrizione della dichiarazione di presa visione e del consenso al trattamento dei dati personali. CENTROCASA NOVARA

Tipologia: Casa indipenden
Riscaldamento: Autonomo
Superficie: 90 mq
Richiesta economica:45.000 €
Stato occupazione:Libero
Riferimento:T304
Caratteristiche immobile Giardino Privato
Classe Energetica

G

Classe energetica (I.P.E.) dell'immobile
380.63 kWh/mqa
Virtual tour 1 2 3 4 5 6 7 8 9

Sei interessato/a a questo immobile?
Compila l'apposito modulo.
Oppure chiama il Tel. 0321/404109 - 0321/404133


Hai un immobile simile?
Vorresti metterlo in vendita?


Clicca sulle immagini per ingrandirle

T304 BORGOLAVEZZARO - CASA INDIPEND. CON CORTILE PRIV.
T304 BORGOLAVEZZARO - CASA INDIPEND. CON CORTILE PRIV.
T304 BORGOLAVEZZARO - CASA INDIPEND. CON CORTILE PRIV.
T304 BORGOLAVEZZARO - CASA INDIPEND. CON CORTILE PRIV.
T304 BORGOLAVEZZARO - CASA INDIPEND. CON CORTILE PRIV.
T304 BORGOLAVEZZARO - CASA INDIPEND. CON CORTILE PRIV.
T304 BORGOLAVEZZARO - CASA INDIPEND. CON CORTILE PRIV.
T304 BORGOLAVEZZARO - CASA INDIPEND. CON CORTILE PRIV.
T304 BORGOLAVEZZARO - CASA INDIPEND. CON CORTILE PRIV.
T304 BORGOLAVEZZARO - CASA INDIPEND. CON CORTILE PRIV.
T304 BORGOLAVEZZARO - CASA INDIPEND. CON CORTILE PRIV.
T304 BORGOLAVEZZARO - CASA INDIPEND. CON CORTILE PRIV.
T304 BORGOLAVEZZARO - CASA INDIPEND. CON CORTILE PRIV.
T304 BORGOLAVEZZARO - CASA INDIPEND. CON CORTILE PRIV.
T304 BORGOLAVEZZARO - CASA INDIPEND. CON CORTILE PRIV.
T304 BORGOLAVEZZARO - CASA INDIPEND. CON CORTILE PRIV.
T304 BORGOLAVEZZARO - CASA INDIPEND. CON CORTILE PRIV.
T304 BORGOLAVEZZARO - CASA INDIPEND. CON CORTILE PRIV.
T304 BORGOLAVEZZARO - CASA INDIPEND. CON CORTILE PRIV.
T304 BORGOLAVEZZARO - CASA INDIPEND. CON CORTILE PRIV.
T304 BORGOLAVEZZARO - CASA INDIPEND. CON CORTILE PRIV.
T304 BORGOLAVEZZARO - CASA INDIPEND. CON CORTILE PRIV.
T304 BORGOLAVEZZARO - CASA INDIPEND. CON CORTILE PRIV.
T304 BORGOLAVEZZARO - CASA INDIPEND. CON CORTILE PRIV.
T304 BORGOLAVEZZARO - CASA INDIPEND. CON CORTILE PRIV.
T304 BORGOLAVEZZARO - CASA INDIPEND. CON CORTILE PRIV.

Planimetria

T304 BORGOLAVEZZARO - CASA INDIPEND. CON CORTILE PRIV.